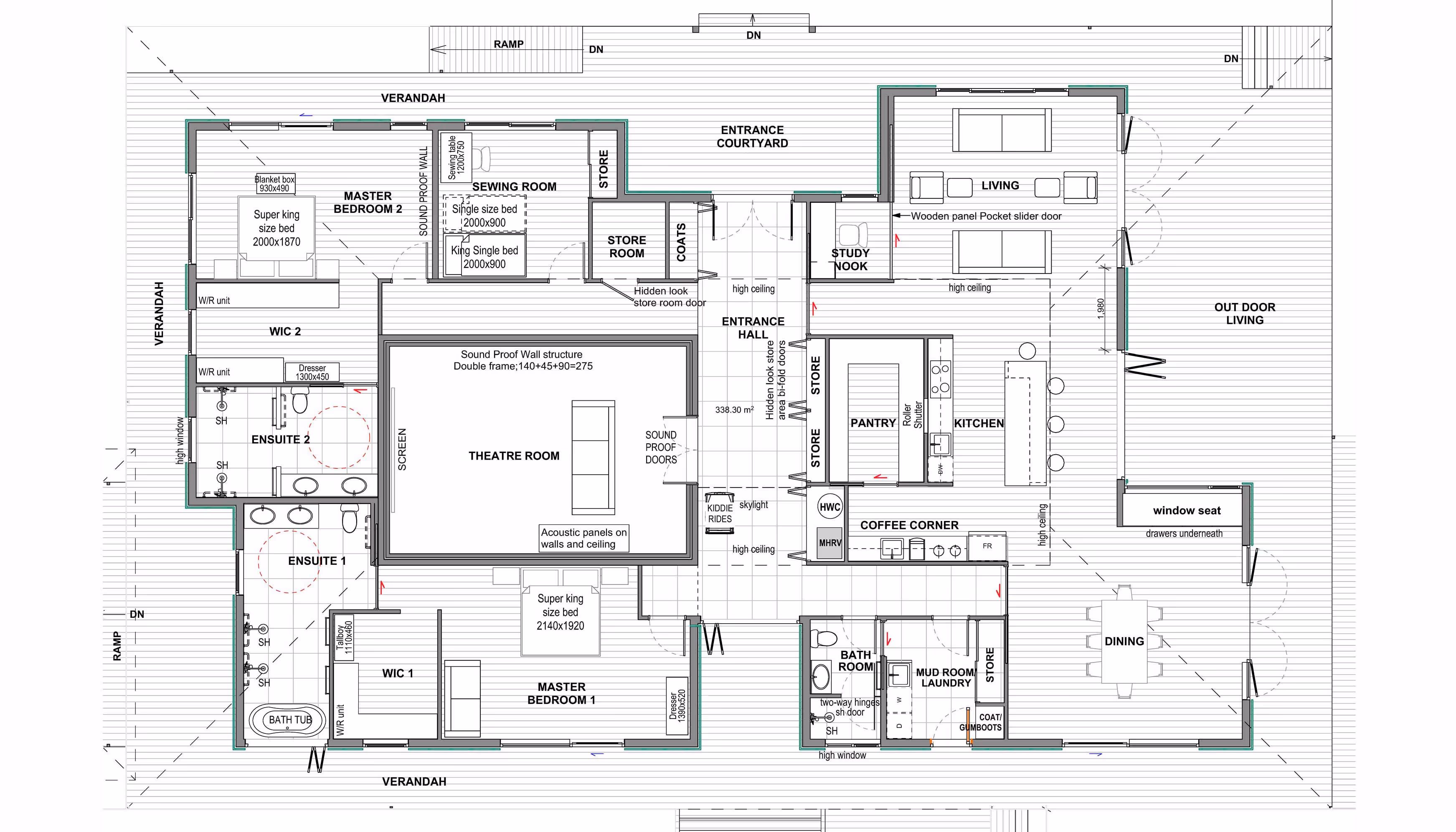
This Superhome is a fusion of traditional Japanese and modernist home architecture. Thoughtful manipulation of light and shade and variations of ceiling heights create delightful and super comfortable spaces. Occupants of the home are sure to be well entertained with its central home cinema and outdoor covered lap pool, all surrounded by the stunning Whangārei landscape.










Bob Burnett Architecture © 2026